Appartements d'Une Chambre à Distance de Marche de la Plage à Erdemli Mersin
Les appartements à vendre sont situés dans le quartier Arpacbahsis du district Erdemli. Mersin est la ville qui possède le plus long littoral de l'Europe avec son littoral de 320 km de long. Mersin bénéficie d'un climat méditerranéen subtropical. Les étés sont chauds et ensoleillés, tandis que les hivers sont doux et pluvieux. À Mersin, vous pouvez profiter de la mer et du temps chaud tout au long de l'année. La ville possède un riche patrimoine historique et culturel. Il est possible de trouver à Mersin de nombreuses structures datant de l'Antiquité. De plus, la ville dispose de nombreux centres commerciaux, lieux de divertissement, pubs et restaurants servant des cuisines du monde entier. Mersin promet un style de vie confortable avec une circulation très fluide grâce aux sentiers pédestres et cyclables de la côte, aux rocades et aux autoroutes conçues parallèlement à la mer. Arpacbahsis, un centre de vacances dans le district Erdemli, est idéal pour ceux qui veulent acheter des appartements à Mersin pour passer des vacances paisibles et agréables.
Les appartements neufs se trouvent à 87 m de la route principale et des arrêts de bus, 220 m de la pharmacie, 620 m de la plage, 800 m du lycée, 824 m du marché, 4,4 km de la gare routière d'Erdemli, 6 km du centre commercial Novacity, 6,6 km de l'hôpital d'État d'Erdemli, 24,9 km de la marina de Mersin, 27 km du centre commercial Forum Mersin, 28,8 km de Kizkalesi, 31,6 km de la gare de trains à grande vitesse de Mersin et 97 km de l'aéroport d'Adana.
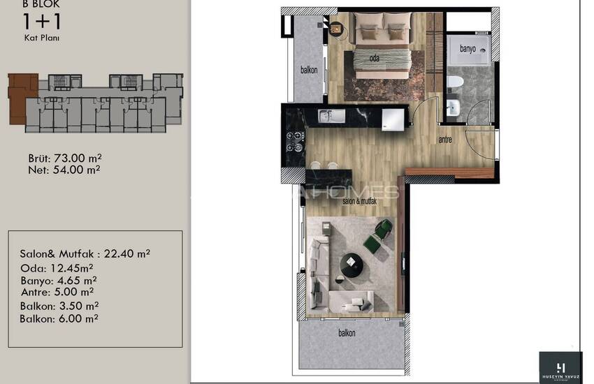
Les appartements luxueux se trouvent dans un projet de deux blocs, construit sur une superficie de 4.140 m². Il y a 6 types différents d'appartements d'une chambre dans le projet. La résidence luxueuse comprend des piscines extérieures, des parkings extérieurs, des aires de jeux pour enfants, un générateur, des pergolas, des ascenseurs, une sécurité 24/7 et des caméras de surveillance.
Les appartements au design élégant sont dotés de caractéristiques telles que des plafonds suspendus, des armoires de cuisine et de salle de bain, des balcons, des portemanteaux, des cuisines ouvertes, des comptoirs de cuisine, des fenêtres à double vitrage en PVC, des parquets jointifs de 10 mm, des vidéophones, des cabines de douche, des portes d'entrée en acier et des revêtements de sol en résine.














































