Muğla Milas’ta Bodrum Havalimanı’na Yakın Doğa Manzaralı Daireler
Yatırım fırsatı sunan doğa manzaralı daireler Milas’ın Kemikler bölgesinde bulunmaktadır. Kafe, restoran, market, eczane, banka ve hastane gibi pek çok günlük ve sosyal olanak yakın mesafede bulunmaktadır.
Yeni yapılan satılık daireler, Bodrum-Milas Havalimanı'na 5 km, hastaneye 16 km, dünyanın eski 7 harikasından biri olan Halikarnas Mozolesi’ne 39 km, Bodrum ilçe merkezine ve Bodrum Kalesi'ne 40 km mesafede yer almaktadır.
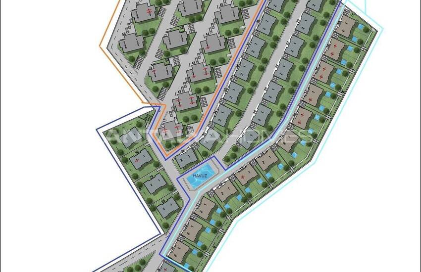
Muğla Milas’ta satılık daireler 40.000 m² alan üzerine inşa edilmiş sitede yer almaktadır. Site 114 daire ve 80 adet ikiz villadan oluşmaktadır. Lüks sitenin içerisinde, hobi bahçeleri, tenis kortu, ortak havuz, çocuk havuzu, spor tesisi, açık otopark ve 7/24 güvenlik bulunmaktadır.
Modern tasarımlara sahip daireler iki yatak odası, oturma odası, açık mutfak, banyo ve balkondan oluşmaktadır.
















































































