Alanya Kargıcak'ta Denize 650 mt Mesafede Otel Konseptinde Daireler
Anahtar teslim daireler, Alanya'da sakin bir bölge olan Kargıcak'ta doğa ile iç içe bir konumda yer almaktadır. Daireler alçak katlı binalarla çevrilidir. Ayrıca Alanya'da satılık daireler dağ ve deniz manzarasıyla mükemmel bir konumda yer almaktadır. Deniz manzaralı daireler marketlere, halk pazarına, kafelere, restoranlara ve otobüs duraklarına yakın konumdadır. En yakın alışveriş merkezi sadece 700 metre uzaklıktadır. Satılık daireler Kargıcak merkeze 2 km, Alanya şehir merkezine 15 km, yeni golf sahası projesine 1 km, plaja 650 m ve Gazipaşa havaalanına 20 km uzaklıkta yer almaktadır.
Lüks konut kompleksi 11.562 m² arsa üzerine inşa edilmiştir. Bu kompleks 7 blok ve toplam 96 daireden oluşmaktadır. 5 yıldızlı otel konseptiyle dizayn edilen proje içinde iyi tasarlanmış bir bahçe, kapıcı, sauna, kafeterya, fitness salonu, asansör, bowling, hamam, barbekü alanı, kuaför, jeneratör, 5 yüzme havuzu, çocuk havuzu, çocuk oyun parkı, tenis ve basketbol sahaları, masaj odası, buhar odası, kapalı yüzme havuzu, 3 açık otopark alanı, bir kapalı otopark, sinema salonu, havuz bar, resepsiyon, squash salonu, 7/24 güvenlik kamera sistemi ve güvenlik bulunmaktadır.
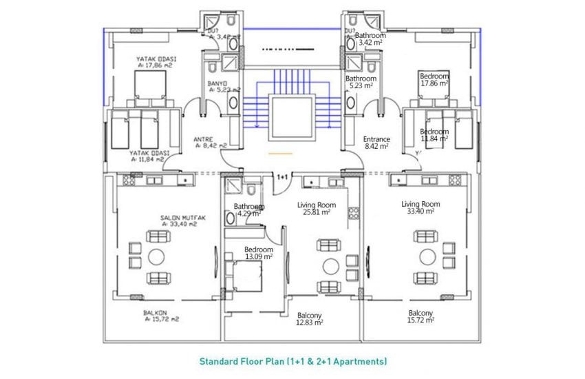
Daire tipleri
1 yatak odalı dairelerde oturma odası, açık plan mutfak, banyo ve balkon bulunmaktadır.
2 yatak odalı dairelerde oturma odası, açık plan mutfak, banyo, ebeveyn banyo ve balkon bulunmaktadır.
3 yatak odalı bahçe dublekslerinde oturma odası, açık plan mutfak, 2 banyo, 2 ebeveyn banyo, balkon ve teras vardır.
3 yatak odalı çatı dubleksinde oturma odası, açık plan mutfak, 2 banyo, ebeveyn banyo, balkon ve teras bulunmaktadır.
Tüm dairelerde her odada klima, ankastre mutfak, beyaz eşya (6 parça, mikrodalga dahil değildir), merkezi ısıtma sistemi, spot ışıklandırma, TV uydu sistemi, şofben ve wi-fi internet bağlantısı bulunmaktadır.



























































































